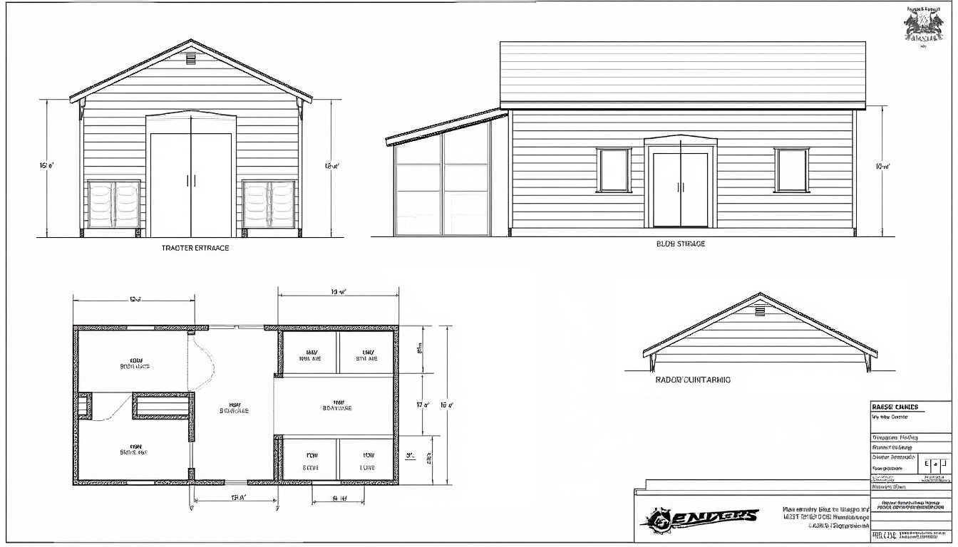
Besoin d’un plan hangar bois gratuit pour garer le tracteur 🚜 ou stocker le foin 🌾 ? Le PDF open-source de l’Atelier Paysan demeure, en 2025, la référence la plus complète : trois structures de 11 à 15 m², assemblages simplifiés et liste de pièces prête à l’achat en GSB, le tout libre de droits et modifiable.
Télécharger un plan hangar bois gratuit en PDF : les sources fiables en 2025
La clé : privilégier les plateformes qui publient des plans vérifiés et actualisés, assortis d’une licence claire.
| 🌐 Source | Superficie 👷 | Usages conseillés 🪵 | Licence 📄 |
|---|---|---|---|
| Atelier Paysan | 11-15 m² | Poulailler, abri tracteur, foin | CC BY-NC-SA |
| Station Nomade | 20-60 m² | Stockage fourrage, atelier | Creative Commons |
| Archifacile | À paramétrer | Plan 2D/3D personnalisé | Freeware |
| Bibliocad | Variable | DWG + PDF | Libre de partage |
| EcoBuilderz | 15-40 m² | Carport, hangar | Domaine public |
- 📥 Téléchargez le PDF, puis vérifiez la compatibilité avec vos contraintes locales (hauteur, emprise au sol).
- 🔍 Comparez les listes de coupes avant d’acheter le bois chez Leroy Merlin, Castorama ou Brico Dépôt.
- 🛠️ Adaptez les sections de poteaux si vous comptez installer un kit photovoltaïque ; l’article permis de construire pour hangar photovoltaïque détaille les charges supplémentaires.

Étape express pour sécuriser votre téléchargement
Scannez toujours le hash MD5 fourni par l’éditeur et gardez une copie hors ligne ; une altération du fichier peut fausser les côtes.
Adapter le plan à un abri tracteur ou un stockage de foin : la méthode pas à pas
Le même PDF peut couvrir deux besoins diamétralement opposés ; tout est question d’implantation et de renforts.
- 📏 Dimensionner l’ouverture : prévoyez 3,20 m libres pour un tracteur moderne ; 2 m suffisent pour un chariot à foin.
- 🪚 Modifier la hauteur de sablière : +40 cm pour un engin cabine, ‑20 cm pour réduire la prise au vent sur un stockage de ballots.
- 🧱 Penser aux sols : dalle lissée 12 cm (C25/30) pour engin roulant, hérisson drainant + caillebotis pour foin.
- 🌬️ Ventiler : claire-voie haute + volet bas ; évite la condensation dans les ballots.
- 🔗 Maillage interne : ajoutez raidisseurs en feuillard métal ⟶ dispo chez Gedimat ou Point P.
Pour visualiser ces adaptations, ce timelapse illustre le rehaussement de ferme et la pose de contreventements.
Matériaux, outils et fournisseurs : que choisir en 2025 ?
La hausse du prix de l’acier a renforcé l’attrait du bois local certifié PEFC, mais le choix d’équipements reste décisif.
- 🪵 Poteaux douglas 150 × 150 mm : dispo en scierie ou chez Mr Bricolage.
- 🔩 Quincaillerie galvanisée M12 : kits complets chez ManoMano.
- 🔨 Scie circulaire Makita 190 mm + visseuse impact Bosch 18 V : combo conseillé pour débit rapide.
- 🪟 Polycarbonate anti-UV pour clair-voie : panneaux découpés sur-mesure chez Lapeyre.
Une coopérative fictive, la ferme “Les Ruches Vives”, a optimisé son hangar en passant d’arêtiers traditionnels à des connecteurs métalliques réversibles : un gain de 12 h de montage et 6 % d’économie de bois.
Coût moyen du matériel en avril 2025
| Élément 🔧 | Prix unitaire 💶 | Fournisseur 🏪 |
|---|---|---|
| Poteau douglas 3 m | 45 € | Point P |
| Kit boulons + équerres | 82 € | Brico Dépôt |
| Bac acier 3 m² | 36 € | Castorama |
| Connecteurs pied de poteau | 18 € | Leroy Merlin |
| Visseuse Bosch 18 V | 149 € | Mr Bricolage |
Normes, permis et distances légales à respecter 🛡️
Avant de creuser la première semelle, vérifiez deux textes : le PLUi de votre commune et l’arrêté préfectoral sur les installations agricoles.
- 📐 Distance minimale de 35 m avec la première habitation ; variable selon les départements.
- 📄 Au-delà de 20 m² d’emprise : déclaration préalable ; au-delà de 50 m² : permis de construire (voir le guide permis hangar ouvert).
- ⚡ Pré-câblage photovoltaïque : déclaré au Consuel + mentionné dans la notice thermique.
- 📊 Besoin d’un comparatif de loyers ? Consultez la grille régionale prix location bâtiment agricole.
Un agriculteur d’Occitanie a réduit le délai d’instruction de 2 mois en joignant une étude de gabarit 3D générée sous AutoCAD ; un argument visuel apprécié par la DDTM.
Questions fréquentes
Où trouver un plan de hangar bois adapté à un tracteur de 150 ch ?
Le PDF 15 m² de l’Atelier Paysan accepte une ouverture de 3,5 m ; élargissez simplement les entraxes de poteaux à 2 m pour loger un tracteur de 150 ch.
Quelle essence de bois résiste le mieux aux rongeurs sous un stockage de foin ?
Le douglas raboté, naturellement imprégné, limite les attaques ; un grillage acier en larmier complète la protection.
Peut-on financer le hangar avec la PAC 2025 ?
Oui, l’Investissement Matériel Agricole subventionne jusqu’à 30 % si le bâtiment inclut une fonction de stockage fourrager certifiée.
Combien de jours faut-il pour monter un abri de 15 m² à deux personnes ?
Comptez 4 jours en auto-construction, dont 1 journée pour la couverture.
Un hangar bois est-il plus économique qu’un hangar métal ?
Jusqu’à 20 m² oui : le bois local coûte 15 % de moins que l’acier ; au-delà, le métal gagne grâce à ses portées libres.
En maîtrisant les téléchargements, les adaptations et la réglementation, ce plan hangar bois gratuit devient un levier d’autonomie pour protéger machines et fourrages sans exploser le budget. 🚀





